$119,900
DETAILS
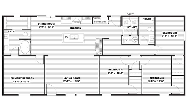
In StockThe Expedition model by Clayton Epic offers 1,600 sq. ft. of thoughtfully designed living space, featuring 4 bedrooms and 2 bathrooms. Its open-concept layout seamlessly connects the kitchen, living, and dining areas—ideal for entertaining and everyday family life. The primary suite includes a private bath and a walk-in closet, providing a comfortable retreat. With generous storage and energy-efficient construction, the Expedition is a smart choice for families seeking both space and functionality.
HOME FEATURES
Open Concept
Split Bedrooms
Utility Room with Washer and Dryer Hookups
Stainless Steel Appliances
Kitchen Coffee Bar
Kitchen Island with Breakfast Bar
Master Ensuite with Double Sink Vanity
Master Ensuite with Walk-in Closet
Property Highlights:
4
Beds
2
Baths
1600
Sq Ft
28x60
Size
Featured Homes
Find Your Dream Home
Search Let’s get started. Find your dream home today!
4 Beds
1560 Sq Ft
2 Baths
52x32