DETAILS
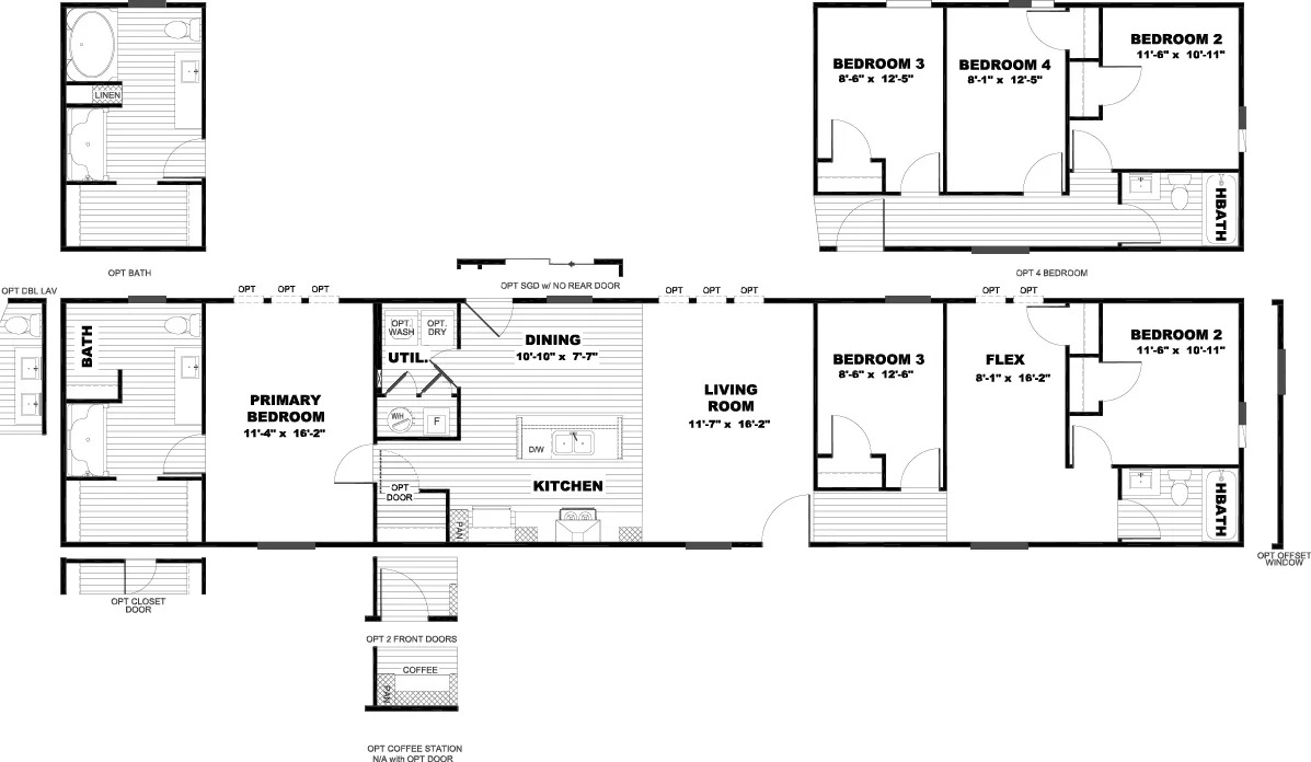
In StockThis single-section ranch offers around 1,400 sq ft of well-designed living space, featuring 3 bedrooms and 2 bathrooms. It includes an open concept layout with a central living and dining area flowing into a modern kitchen anchored by a large island—ideal for gatherings or everyday ease. The split-bedroom setup enhances privacy, and the features-rich design ensures comfort and style for a wide range of lifestyles.
HOME FEATURES
Open Concept
Split Bedrooms
Additional Flex Room
Utility Room
Kitchen Island with Breakfast Bar
Property Highlights:
Beds
Baths
Sq Ft
Size
Featured Homes
Suite Sara
The Suite Sara is a modern four bedroom two bath home with 1560 square feet of living space ...
4 Beds
1560 Sq Ft
2 Baths
52x32The Anderson
The Anderson is a compact and cleverly designed tiny home offering 1 bedroom and 1 bath in a...
1 Beds
397 Sq Ft
1 Baths
40x12The Vail
The Vail is a compact 1 bedroom 1 bath park model home with about 397 square feet in a 12 by...
1 Beds
397 Sq Ft
1 Baths
40x12The Willison
The Willison is a smart and efficient 3-bedroom, 2-bath single-section home offering approxi...
3 Beds
1140 Sq Ft
2 Baths
76x16The Copperwood
The Copperwood is a 3 bedroom 2 bath home that offers a comfortable and well-designed living...
1 Beds
397 Sq Ft
1 Baths
40x12The Graceland
The Graceland is a cozy 2 bedroom 2 bath single section home with about 840 to 896 square fe...
2 Beds
840 Sq Ft
2 Baths
56x16The Big Bo
The Big Bo is a single section home measuring 18 by 80 with about 1360 square feet of living...
3 Beds
1360 Sq Ft
2 Baths
80x18The Tony
The Tony is a single section home sized 16 by 72 offering three bedrooms and two bathrooms w...
3 Beds
1080 Sq Ft
3 Baths
72x16The Stephens
The Stephens is a spacious three bedroom two bath home offering about 1640 square feet of li...
3 Beds
1620 Sq Ft
2 Baths
60x28The Razor
The Razor is a comfortable and efficiently designed 2 bedroom 2 bath single section home off...
2 Beds
990 Sq Ft
2 Baths
66x16The Oasis
The Oasis is a 3-bed, 2-bath, 1,920 sq. ft. home that blends comfort and style with its spac...
3 Beds
1920 Sq Ft
2 Baths
68x32The Big Steve
The Big Steve is a 1680 sq ft home offered in 3 or 4 bedroom layouts with a bright open desi...
3 Beds
1680 Sq Ft
2 Baths
56x32The Whitehaven
The Whitehaven is a comfortable three bedroom two bath home with about 1530 to 1568 square f...
3 Beds
1512 Sq Ft
2 Baths
56x28The Fiesta 2.0
The Fiesta 2.0 is a 3-bedroom, 2-bath multi-section home with roughly 1,530 sqft of living s...
3 Beds
1296 Sq Ft
2 Baths
56x28PT-78
Discover this beautifully designed 3-bedroom, 2-bath home offering approximately 1,474 sq ft...
3 Beds
1474 Sq Ft
2 Baths
56x28The Big Josh
The Big Josh is an impressive 2,280 sq ft home measuring 32′ × 76′, designed to offer e...
4 Beds
2280 Sq Ft
3 Baths
76x32Oak
The Oak offers smart ranch-style living with 4 bedrooms and 2 bathrooms across 1,475 square ...
4 Beds
1475 Sq Ft
2 Baths
56x28The Avonlea
The Avonlea showcases the best of Deer Valley Homebuilders, offering a modern, beautifully c...
3 Beds
2280 Sq Ft
2 Baths
80x32Emerald 28603A
Discover the elegant Emerald 28603A by Solitaire Homes — a spacious and inviting 3-bedroom...
3 Beds
1660 Sq Ft
2 Baths
60x28Crockett
The Clayton Homes Crockett is a beautifully designed manufactured home offering 1,904 square...
3 Beds
1904 Sq Ft
2 Baths
72x28The Woodside
The Deer Valley manufactured home offers a spacious and elegant layout with 3 bedrooms, 2 ba...
3 Beds
2115 Sq Ft
2 Baths
66x47The Anais
The Anais is a beautifully crafted estate-sized home designed for seamless indoor/outdoor li...
4 Beds
3180 Sq Ft
3.5 Baths
80x47